AXIS Gallery

/ AXIS Gallery

Project : #AXIS_Gallery

Series : #MuseumismSeries

Function:Gallery / 藝廊

Net Area:144m² / 48p

Design Team:Lynch 程禮譽 @studioX4

Project Manager:張耀文

Photography:@YHLAA

-

This 1960s Taipower emergency-repair centre was reframed into an exhibition gallery. We kept its bones and changed its language — an aluminum-grid facade, a 21-degree axial pivot, and a minimalism that lowers its voice so the work can speak. The space is a canvas; the building offers itself as a background for art.

這棟由六零年代台電搶修中心改造而成的藝廊,我們保留它的骨、換了它的語言。焊接鋁格立面、21 度的軸線偏轉,極簡並非空無——而是讓建築安靜下來,把舞台讓給作品。空間是一張畫布,建築以背景姿態出現。

夜間建築正立面,一樓展間燈光點亮整棟量體,人影立於藝廊入口。

Night facade; gallery lighting fills the ground floor and a single figure stands at the threshold.

日間外觀,鋁格台階、植栽槽、抬高地板由前景向後延伸。

Daytime exterior — the aluminum-grid stair, planter troughs, and raised platform step back from foreground to core.

The original structure is a 1960s Taipower emergency-repair centre — once a local symbol of progress: raised floors for container trucks, a reinforced-concrete skeleton, and a "two-ding" tile facade mimicking the masonry proportions of an earlier era. We kept its bones. We changed its language.

這棟六零年代遺留下來的房子,前身是台電的搶修中心——那個時代它是進步的象徵:貨櫃車專用的抬高地板、鋼筋混凝土構造、表面仿造磚造時期尺寸的二丁掛磚。我們保留它的骨,換了它的語言。

To an artist, the exhibition space is what the canvas is to paint — it must be a background, a language of inclusion. We chose aluminum for its lower reflectivity and welded it into a primordial grid. The entrance is that subtle shift — an axis pivoted 21 degrees.

展覽空間之於藝術家,如同畫布之於顏料——它應該是背景,是包容的語彙。於是我們找尋中性的材料:不屬於男性的,也不屬於女性的,不搶眼,也不隱藏。我們選擇反射性較低的鋁料,焊接成最原始的方格狀。入口——就是那道微微轉折 21 度的軸線。

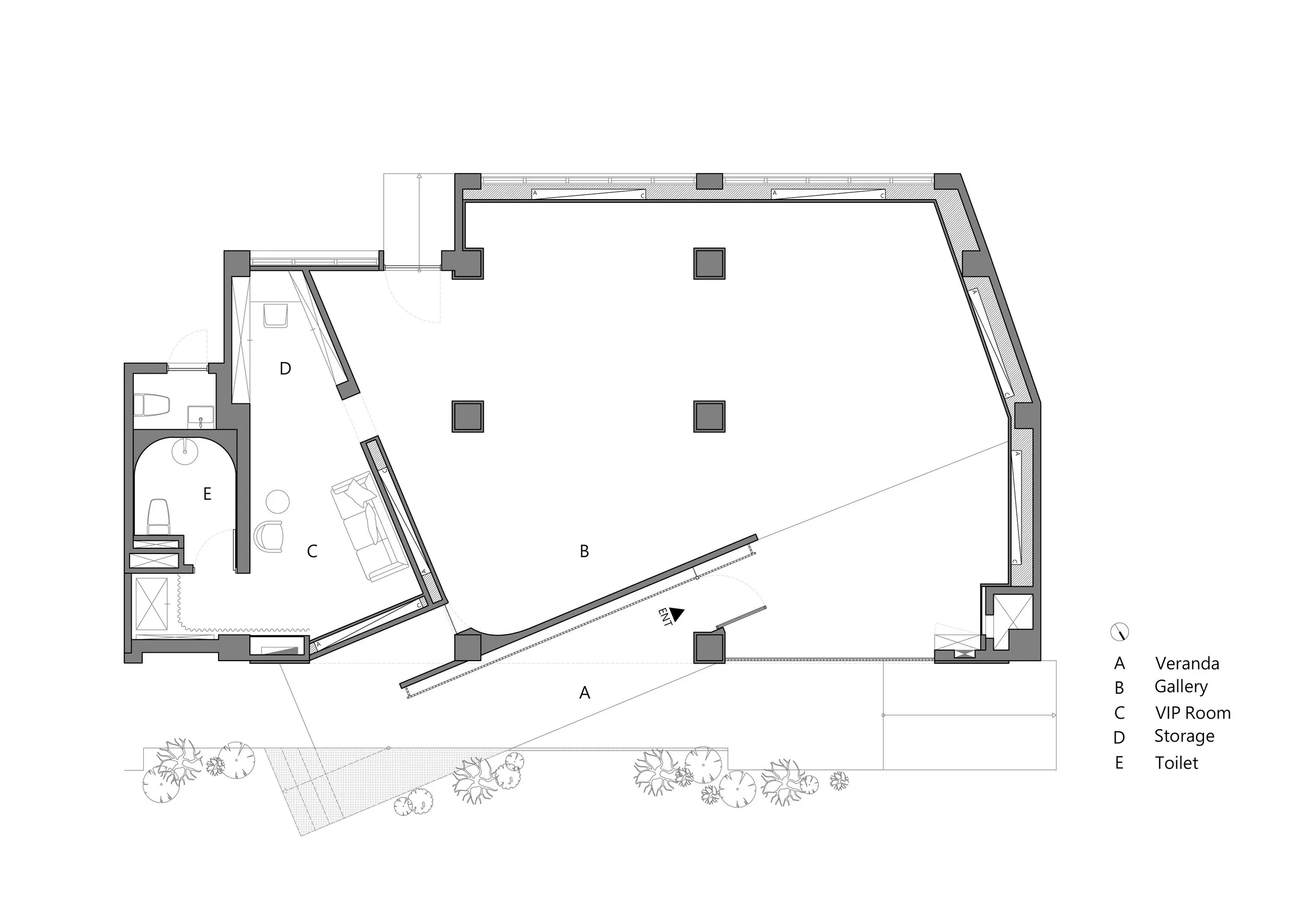
AXIS Gallery 平面圖

Plan of AXIS Gallery

Interior — the space as canvas

內部空間 — 作為畫布的建築

夜間入口斜角,人影正步入門洞,鋁格光幕作背景。

Night approach; a figure enters the doorway with the luminous grid as backdrop.

鋁格近景,黑白高反差,人影穿越方格光線。

Close-up of the grid at night, black-and-white — a silhouette threading through a lattice of light.

If the work is exuberant, the space must feel exuberant; if the work is bashful, the space must feel bashful. White walls, white floor, black ceiling, columns in series, and the grid's light drifting along the rear wall — we lowered our own voice so the work could speak.

如果這件藝術品是歡愉的,那空間也該歡愉;如果它是羞赧的,那空間也該羞赧。白牆、白地、黑頂,方柱排列,鋁格光幕游移於後牆——我們把語彙降到最低,讓作品說話。

Minimalism is not emptiness. The curved wall arrives at an arch; beyond the arch, a dark room; deep in the dark room, a single red — the building grants itself one colour, and speaks it in the softest voice.

極簡不是空無。曲牆盡頭有拱門,拱門後有暗室,暗室深處有一抹紅——整棟建築只給自己留這一個顏色,用最靜的方式說話。

主展間空景,四根方柱排列,鋁格光幕投影於後牆,黑白。

Empty main gallery in black-and-white — four square columns in series with the grid's light pattern cast upon the rear wall.

主展間曲牆空景,牆面弧線轉至拱門開口,光線均勻。

Empty curved rear wall of the gallery — the arc resolves into an arched opening under even light.

• 設計面積 Area:144m² / 48p

• 專案類型 Function:Gallery 藝廊

• 設計主持 Director:程禮譽 Lynch

• 專案設計 Project Manager:張耀文

• 空間攝影 Photography:YHLAA, 李易暹 Ethan Lee

Aluminum. Welds. A grid. Twenty-one degrees.

At the end, the building reduces itself to a few words — and that, precisely, is the colour of the canvas.

鋁料、焊接、方格、21 度——

建築的故事,到最後只剩幾個字。畫布的顏色,正是這樣。

#AXIS_Gallery #MuseumismSeries #StudioX4 #乘四建築師事務所

洗手間,深紅色灰泥曲牆,不鏽鋼圓柱立式洗手台,單點照明。

The bathroom — a deep-red lime-plaster curve, a cylindrical stainless basin, a single downlight: the one colour accent in the house.

鋁格門把近景,日光下鋁料光澤,與門扇方格紋理同框。

The same handle in daylight — the metal's muted sheen against the grid behind it, closing the reading.


Next
Next

X4 Office