LeafyLife

LeafyLife

Museumism Series · Residential · Taipei

設計面積 Area|128 m² / 38.7 坪

專案類型 Function|住宅 Residential

設計主持 Director|程禮譽 Lynch Cheng · 陳語蓁 Judith Chen

專案設計 PM|張耀文

專案執行 Execution|楊捷新

空間攝影 Photography|YHLAA · 李易暹 Ethan Lee

系列 Series|MuseumismSeries

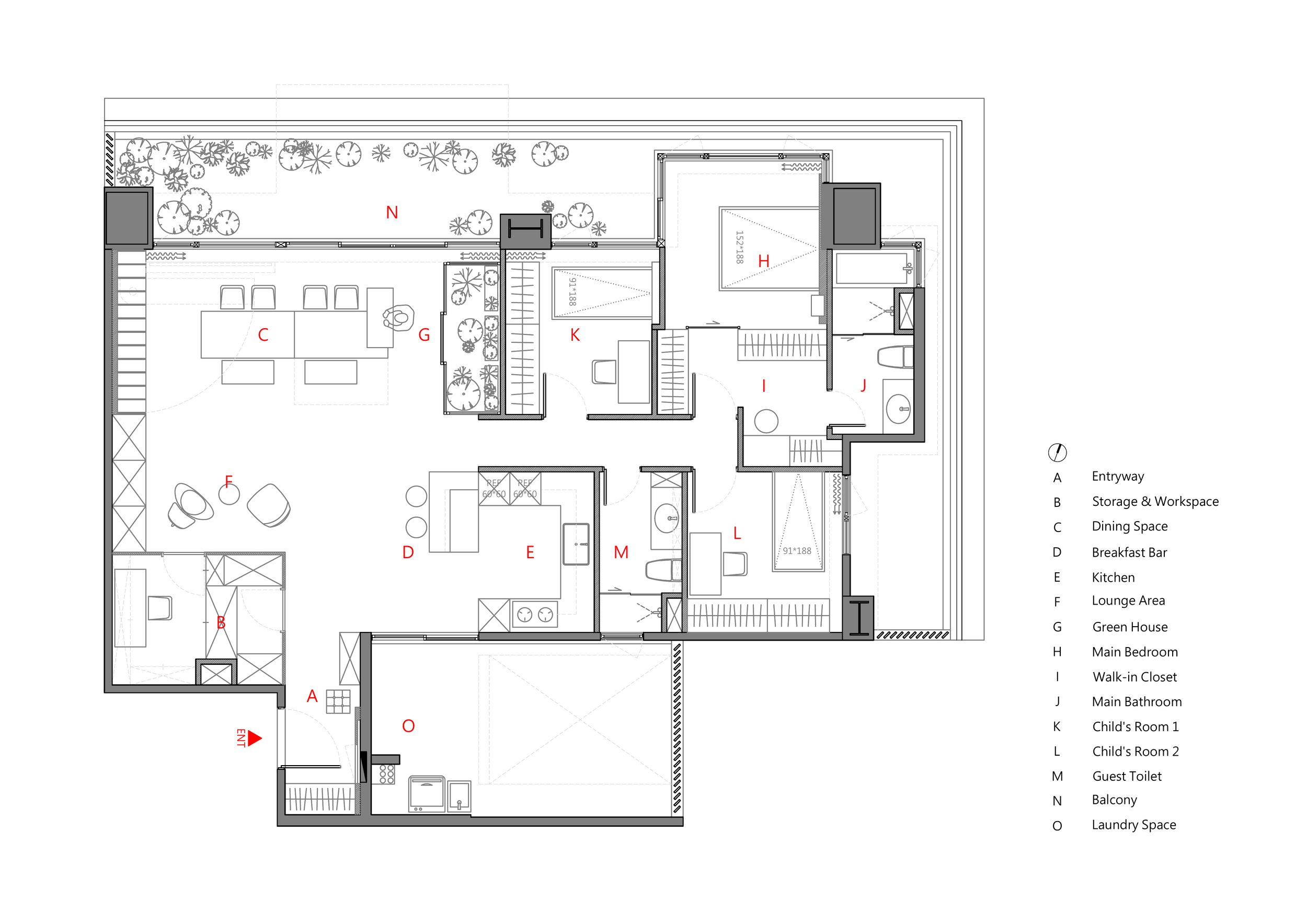
LeafyLife 森活宅最初的命題很簡單:讓居住者對於植栽的喜好,成為生活的家事。

居住者一家四口對植栽的興趣,逐步轉變成設計的切入點。整個設計分為三個步驟,由外而內、由大而小:第一步是選屋,挑中台北市區難得擁有豐沛綠植景色的位置;第二步是選房,從整棟社區裡選定擁有近 20 坪景觀露台的戶別;第三步是引入,室內配置專屬的醫療溫室,以及中島植栽工作區。

LeafyLife began with a single intent: let the family’s love of plants become the daily fabric of the home.

For this family of four, an affection for plants became the entry point of the design — three deliberate steps, moving from outside in and from large to small. First the site: a rare pocket in central Taipei held in deep canopy. Second the unit: chosen for an unusual 20-ping landscaped terrace. Third the interior itself: a dedicated grow room, and a kitchen-island bench for tending plants.

可隨需求而自由旋轉變化的多功能起居室

這三個選項環環相扣,互相幫助。戶外讓室內得以喘息;選房的樓高剛好對齊樹梢,樹梢的綠意成為露台的延伸,露台又成為室內植栽的日照區,日照區則與室內的醫療溫室互補。

設計團隊在這條邏輯下安排了兩處特殊構造,把視野盡量打開,呼應落地窗外的景觀。

其一,可動餐桌系統。透過榫接與工業橡膠輪,3.6 米長桌可以輕鬆移動成為植物工作桌;桌腳採鏡面金屬,反射四周,幾乎消失於綠蔭之中。

其二,投影機旋轉低檯。觀影時雷射投影設備可旋轉而出,搭配窗簾盒內的布幕;其餘時間,最大的「布幕」就是窗外那一片綠。

The three choices reinforce one another. The outdoors lets the interior breathe; the floor height aligns with the canopy, so the treetops extend the terrace, the terrace becomes a daylight zone for the indoor plants, and that zone in turn complements the dedicated grow room.

From this logic, two purpose-built mechanisms were introduced — both designed to open the view as widely as possible, in dialogue with the floor-to-ceiling windows.

The first: a movable dining table. Mortise-and-tenon joinery and industrial rubber casters let the 3.6-meter table glide into position as a plant-tending bench. Its mirror-metal legs reflect their surroundings and all but dissolve into the green.

The second: a rotating low cabinet for the projector. The laser projector swings out for film nights, paired with a screen tucked into the curtain box. The rest of the time, the largest screen is the field of green outside.

為了戶外景觀而設計的隱藏式雷射投影低檯及布幕

此案是 MuseumismSeries 博物館系列的另一種嘗試:在保有極高安靜氛圍的設計裡,首次引入綠意,讓自然與安靜彼此融合。

This project marks another register for MuseumismSeries — the first time greenery has been introduced into the series’ deeply quiet atmosphere, asking nature and stillness to settle into one another.

Next
Next

TanResidence